advertisement

京葉線「幕張新駅」駅名を募集…秋に決定 4枚目の写真・画像

JR東日本千葉支社は5月28日、京葉線新習志野~海浜幕張間に2023年春開業予定の仮称「幕張新駅」の駅名を募集すると発表した。

生活・健康 その他
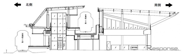
「幕張新駅」中央部の断面図。上り線が高架上、下り線が地上に位置する変則的な構内。
《資料提供 東日本旅客鉄道千葉支社、幕張新都心拡大地区新駅設置協議会》 「幕張新駅」中央部の断面図。上り線が高架上、下り線が地上に位置する変則的な構内。

編集部おすすめの記事

特集

page top